Тимонино - Парк
Московская область, Раменский район, сельское поселение Софьинское, деревня Тимонино, ул., Новая, уч., № 1-50
timonino.park@gmail.com

Дом под чистовую отделку

Дом под чистовую отделку
Площадь
144 м²
Количество этажей
2
Стоимость
11 500 000 ₽
Получить консультацию
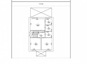
Планировка
Комплектация
  • Газовое отопление под ключ;
  • все коммуникации разведены по дому - вода, канализация, свет;
  • первый этаж - теплые полы везде, на втором этаже теплые полы в санузлах;
  • участок огорожен, простые ворота, калитка.
Напишите нам, мы ответим на все ваши вопросы
Заполните форму, и менеджер свяжется с вами для обсуждения деталей